Smart Select
Projects
Masterclass
Quiz
Smart Select
Masterclass
Quiz
For Homeowners
For Professionals
Sreejith Haridas
Civil Engineer | Wayanad, Kerala
Residential building #2 storey residential address #ground floor area -1139 square feet #first floor area - 661 square feet #total area -1800 square feet.
0
0
More like this
Sreejith Haridas
Civil Engineer
model plan #2d_design #ground floor -2685 square feet #first floor - 1916 square feet #total area - 4601 square feet.
Sreejith Haridas
Civil Engineer
model plan #2d_design #ground floor -1718 square feet #first floor - 908 square feet #total area - 2626 square feet.
Sreejith Haridas
Civil Engineer
single storey residential building #ground floor area - 2020 square feet #2D model plan
Sreejith Haridas
Civil Engineer
Model plan #basic vasthu concept # (ground floor - 1144 square feet, First Floor-692 square feet) #modern elevation #total area 1836 square feet #Client_firoz,chavakkad,kerala.
Aqil Nazeer
Architect
Guruvayoor residebce renovation plan and 3d design #exteriordesigns #HouseDesigns #HouseRenovation #rendering #3d #SmallHouse
Sreejith Haridas
Civil Engineer
model plan #2d_design #ground floor -1956 square feet #first floor - 934 square feet #total area -2 890square feet.
Sreejith Haridas
Civil Engineer
2D Plan # Ground floor area - 825 square feet # First floor area - 835 square feet #Total Area -1660 square feet. location:Wayanad
Sreejith Haridas
Civil Engineer
House Details Ground floor Area - 954 square feet. First floor area - 666 square feet. Additional Porch Area -165 square feet. Additional Work Area -334 square feet. Total Area - 2119 square feet. Bedroom - 4, Bathroom - 3. facilities; Sitout , Car Porch, Living, Dining, Modular Kitchen, Fire Wood Kitchen (work area),Upper Living, Balcony & Open Terrace......etc. Client : muhamnadhkutty Location : sulthan batheri,wayanad. Engineer : Sreejith
MAK Designs
Interior Designer
contemporary model 4BHK๐ค Ground Floor Area : 1550 sqft First Floor Area : 745 sqft Beautiful residence designed Mr. Salam โจ Location : velliparamba #plandesigned #contemporaryhouse #explore #colourful
โน8 per sqft
Labour Only
Jamsheer K K
Architect
Sreejith Haridas
Civil Engineer
model plan #2d_design #ground floor -2587 square feet #first floor - 1680 square feet #total area - 4267 square feet.
Sreejith Haridas
Civil Engineer
2D model Plan # Ground floor area - 1077 square feet #first floor area - 735 square feet #Total area - 1812 square feet. location:sulthan batheri,Wayanad
Sreejith Haridas
Civil Engineer
Model plan #basic vasthu concept # (ground floor - 1652 square feet) (first floor - 1112 square feet) (Total floor Area - 2764 square feet) #modern elevation #Client_jemsheer_kalpetta_wayanad,kerala.
jamshi cv
3D & CAD
Total Area : 1677 sqft Ground Floor : 982 sqft First Floor : 695 sqft โ 3 Bedroom โ Dining โ Open Kitchen โ Working kitchen โ 3 Attached bathrooms โ Living room โ Patio Home Design Doing Online home Design โถ๏ธPlanning โถ๏ธHome Exterior Design โถ๏ธHome Interior Design โถ๏ธHome Landscape Design #keralahome #homedesign #architecture #homes #indianarchitecture #reels
Ubaiz golden gate
3D & CAD
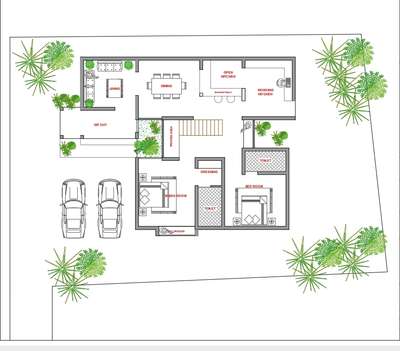
gf plan
Sreejith Haridas
Civil Engineer
model plan #2d_design #ground floor -965 square feet #first floor - 577 square feet #total area -1542 square feet.
Sreejith Haridas
Civil Engineer
2D plan (Model Plan) #Coimbatore edited model plan # ground floor area - 1731 square feet #first floor area - 1007 square feet #Total Area - 2738 square feet
Sreejith Haridas
Civil Engineer
Model plan #basic vasthu concept # (ground floor - 1606 square feet) (first floor - 974 square feet) (Total floor Area - 2580 square feet) #modern elevation #Client_billa kurian,payyampally, mananthavadi,kerala.
M-biD BUILDERS
Civil Engineer
1300 square feet modern house floor plan #KeralaStyleHouse #2bhkhouseplan #patio_garden_area #ModernBedMaking #tropicalhouse #ContemporaryHouse #MixedRoofHouse
Ubaiz golden gate
3D & CAD
ground floor 1300 sqft #FloorPlans #GF #SingleFloorHouse
Kolo
Kerala
Civil Engineer
Sreejith Haridas
1630003231
Join the Community to
start finding Ideas &
Professionals