Smart Select
Projects
Masterclass
Quiz
Smart Select
Masterclass
Quiz
For Homeowners
For Professionals
Akshay B Sylus
Architect | Thiruvananthapuram, Kerala
Interior Design of a contemporary style Residence. This is a space combining of Living ,dining and a Island kitchen of a private residence design.
11
0
More like this
Akshay B Sylus
Architect
Interior design for a modern Home 🏠This is a combined spaces of living room , dining and a open Island kitchen in a contemporary style Residence Design #modernism #designer #livingroom #residencedesign
Elate Designs
Architect
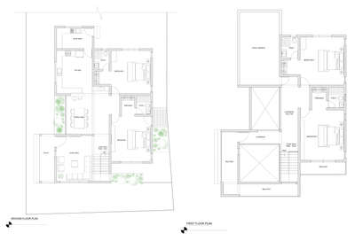
The residence is planned as a compact yet well-lit family home with a clear separation between public and private zones. The ground floor accommodates the living, dining, and kitchen spaces, organized around open connections and landscape pockets to enhance daylight and ventilation. Bedrooms are placed to ensure privacy while maintaining easy internal circulation. The first floor is designed as a more private zone, housing additional bedrooms with balconies and an open terrace that acts as an extension of living space. Overall, the design emphasizes functional planning, natural light, and seamless indoor–outdoor relationships within a simple architectural language. #house_planning #FloorPlans #Architect #architecturedesigns #4BHKPlans #Residentialprojects
Ashly Mary Architects
Architect
Recently Finished Project at Thalayolaparambu. Kottayam. A Contemporary style Residence with 4Bed.
Teby Kurian
Architect
Interior design of a residence Ar Teby K Kurian Mobile: +91 755 800 7901
LYFDESIGNZZ ARCHITECTZ
Architect
Time lapse of Exterior design of a tropical style residence.. client: Mathew lijil place: Ernakulam . . #exteriordesign #interiordesign #architecture #design #exterior #homedecor #interior #home #homedesign #d #architect #construction #outdoorliving #interiordesigner #realestate #landscapedesign #garden #decor #luxuryhomes #architecturelovers #landscape #architecturephotography #gardendesign #designer #housedesign #renovation #art #luxury #architecturedesign #HouseDesigns
₹5,000
Labour Only
Kolo
Kerala
Architect
Akshay B Sylus
1628520191
Join the Community to
start finding Ideas &
Professionals