Smart Select
Projects
Masterclass
Quiz
Smart Select
Masterclass
Quiz
For Homeowners
For Professionals
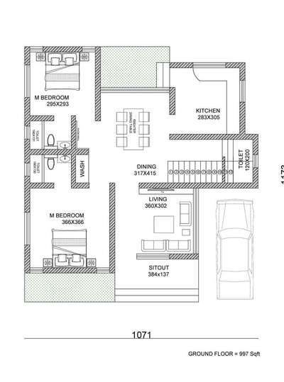
muhammad musthafa
Home Owner | Malappuram, Kerala
8
0
More like this
Dream Design Hub ✅️
3D & CAD
ന്യൂ plan 9656756868
Aswathi Praveen
3D & CAD
YUVA developers
Civil Engineer
#FloorPlans #homedesigne
Dr NAFEESATHUL MIZRIYA MINHAJ BUILDERS
Civil Engineer
First floor ഇൽ Sq-feet ഏരിയ കുറക്കാൻ Staircase design ചെയ്യുമ്പോൾ ഒന്ന് ശ്രദ്ദിച്ചാൽ ചെയ്യാൻ കഴിയും... #NAFEESATHULMIZRIYA #MINHAJBUILDERS #Nafeesathulmizriyamizalvilla@gmail
adarsh c
Civil Engineer
Akhil Achari
Interior Designer
Villa @ Chavakad, Thrissur.
jasheed jashi
3D & CAD
Space Builders
MN Construction
Contractor
800 square feet 2 bedroom house plans 100% Vasthu based design Client : Ashok cherpulassery make your dreams home with MN Construction cherpulassery contact +91 9961892345 ottapalam Cherpulassery Pattambi shornur areas only #plans #FloorPlans #SmallHouse
₹1,750 per sqft
Labour + Material
Swadiq MKD
Civil Engineer
#HouseDesigns #FloorPlans
Heaven Builders
Civil Engineer
#kolo #HouseConstruction #newproject with #lowbudget #2DPlans #keralastyle #1200sqftHouse ^ #2000sqftHouse #don't waste #Dining/Living #FlatRoofHouse #contact me #8075541806 #Call/Whatsapp https://wa.me/message/TVB6SNA7IW4HK1 This is not copyright©®
suhail RECKON
3D & CAD
Saju Narikkuni artist Kozhikode
Architect
എന്റെ വീടിന്റെ പ്ലാൻ ആണ് ആരെങ്കിലും ഒന്ന് 3D യിൽ ചെയ്തു തരുമോ
anwer sadathkv
Civil Engineer
NAiNA NasrinN
Architect
#2dplan #FloorPlans #HouseDesigns #isometric #KeralaStyleHouse #cheapest #modernhouses #3floor
YUVA developers
Civil Engineer
#FloorPlans #homeplan #homedesignideas
Gridz DStudio
Architect
#SmallHouse #budget_home_budget_friendly_packages. call 7560860928
Dr NAFEESATHUL MIZRIYA MINHAJ BUILDERS
Civil Engineer
#MINHAJBUILDERS #NAFEESATHULMIZRIYA #Nafeesathulmizriyaminhajbuilders #Nafeesathulmizriyamizalvilla@gmail #veedu #NorthFacingPlan #dreamhouse
muhammad musthafa
Home Owner
YUVA developers
Civil Engineer
#homedesigne #HouseDesigns #FloorPlans #homedesignkerala
YUVA developers
Civil Engineer
#FloorPlans #HouseDesigns #housedesign #KeralaStyleHouse #SmallHomePlans
Join the Community to
start finding Ideas &
Professionals